¿Eres autónomo o empresa? ¡Regístrate gratis! »

habitissimo - Remodelaciones y Servicios para el Hogar
Menú
Accede Crea una cuenta
  • Directorio de profesionales
  • Guía de precios
  • Preguntas a la comunidad
  • Ideas y proyectos
  • Galería de fotos
  • Procenter
  • Ayuda
¿Eres autónomo o empresa?
  • Directorio de profesionales
  • Guía de precios
  • Comunidad
    • Preguntas a la comunidad
    • Ideas y proyectos
    • Galería de fotos
    • Procenter
  • Ayuda
Accede Accede
Accede

Iniciar sesión

Independiente/Empresa

Remodelación casa habitación.

x
Guardar foto Compartir
Remodelación casa habitación.

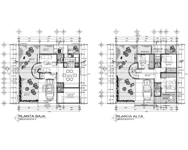
Levantamiento y proyecto de remodelación para casa habitación en la delegación iztapalapa, méxico D.F.

Proyectos Construccion Mantenimiento Instalaciones

Profesional de Arquitectos en Nicolás Romero

Pcmi proyectos está representado por un arquitecto independiente que ofrece servicios profesionales de calidad, tengo… ver más

Detalles del proyecto:

Proyecto y remodelación de casa habitación.

Fotografía 7 de 9

Ver proyecto completo
El proyecto consiste en la remodelación y ampliación de construcción existente para una casa habitación de interés… ver proyecto
Año de finalización:
2013
Superficie:
125 m2
Etiquetas descriptivas:
remodelación, arquitectos, remodelación casa, casa habitación
Remodelación casa habitación. Remodelación casa habitación. Remodelación casa habitación. Remodelación casa habitación.
Remodelación casa habitación. Remodelación casa habitación. Remodelación casa habitación. Remodelación casa habitación.

Otras fotografías que te pueden interesar:

REMODELACIÓN CASA HABITACIÓN  LA HERRADURA HUIXQUILUCAN Proyecto de Casa habitacion Proyecto de Casa habitacion Proyecto de Casa habitacion Fachada Casa-Habitación Fachada Casa-Habitación Proyecto de Casa habitacion
REMODELACIÓN CASA HABITACIÓN  LA HERRADURA HUIXQUILUCAN Proyecto de Casa habitacion Proyecto de Casa habitacion Proyecto de Casa habitacion Fachada Casa-Habitación Terraza Casa-Habitación Remodelación casa Lomas Estrella
REMODELACIÓN CASA HABITACIÓN  LA HERRADURA HUIXQUILUCAN REMODELACIÓN CASA HABITACIÓN  LA HERRADURA HUIXQUILUCAN Proyecto de Casa habitacion Proyecto de Casa habitacion Fachada Casa-Habitación Terraza Casa-Habitación Fachada Posterior Casa-Habitación

Detalles de la fotografía:

Etiquetas:
remodelación · arquitectos · remodelación casa · casa habitación · urbano · salas
  • habitissimo
  • fotos
  • foto: remodelación casa habitación. de proyectos construccion mantenimiento instalaciones #30391
Anunciado en TV Anunciado en TV

Cuéntanos qué necesitas y recibe hasta 4 cotizaciones

Mejora tu hogar
  • Pide cotizaciones
  • Directorio de empresas
  • Precios del sector
  • Preguntas a la comunidad
  • Ideas y proyectos
  • Galería de fotografías
Mejora tu hogar
  • Pide cotizaciones
  • Directorio de empresas
  • Precios del sector
  • Preguntas a la comunidad
  • Ideas y proyectos
  • Galería de fotografías
Particulares
  • Ayuda para particulares
  • Regístrate
  • Consejos para contratar con Habitissimo
Particulares
  • Ayuda para particulares
  • Regístrate
  • Consejos para contratar con Habitissimo
Profesionales
  • Ayuda para profesionales
  • Regístrate
  • Procenter
  • Descarga la app
Profesionales
  • Ayuda para profesionales
  • Regístrate
  • Procenter
  • Descarga la app
Sobre Habitissimo
  • Acerca de
  • Contacta
  • Teléfono Habitissimo
  • Prensa
  • Programa de afiliados
Sobre Habitissimo
  • Acerca de
  • Contacta
  • Teléfono Habitissimo
  • Prensa
  • Programa de afiliados
logo habitissimo habitissimo © 2009 - 2026 Términos de uso Política de privacidad Política de cookies