¿Eres autónomo o empresa? ¡Regístrate gratis! »

habitissimo - Remodelaciones y Servicios para el Hogar
Menú
Accede Crea una cuenta
  • Directorio de profesionales
  • Guía de precios
  • Preguntas a la comunidad
  • Ideas y proyectos
  • Galería de fotos
  • Procenter
  • Ayuda
¿Eres autónomo o empresa?
  • Directorio de profesionales
  • Guía de precios
  • Comunidad
    • Preguntas a la comunidad
    • Ideas y proyectos
    • Galería de fotos
    • Procenter
  • Ayuda
Accede Accede
Accede

Iniciar sesión

Independiente/Empresa

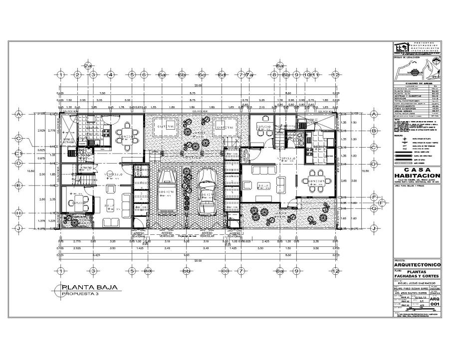
Proyecto de casa habitacion

x
Guardar foto Compartir
Proyecto de Casa habitacion

Proyecto ejecutivo para casa habitación ubicada en ocoyoacac, estado de méxico. Diseños preliminares

Proyectos Construccion Mantenimiento Instalaciones

Profesional de Arquitectos en Nicolás Romero

Pcmi proyectos está representado por un arquitecto independiente que ofrece servicios profesionales de calidad, tengo… ver más

Detalles del proyecto:

Proyecto de casa habitación.

Fotografía 7 de 22

Ver proyecto completo
El proyecto original planteaba la construcción de dos casas dentro de un mismo terreno para venta de las mismas… ver proyecto
Año de finalización:
2013
Superficie:
190 m2
Etiquetas descriptivas:
arquitectos, construcción, casa habitación
Proyecto de Casa habitacion Foto del terreno Foto del terreno Foto del terreno
Foto del terreno Proyecto de Casa habitacion Proyecto de Casa habitacion Proyecto de Casa habitacion
Proyecto de Casa habitacion Proyecto de Casa habitacion Proyecto de Casa habitacion Proyecto de Casa habitacion
Proyecto de Casa habitacion Proyecto de Casa habitacion Proyecto de Casa habitacion Proyecto de Casa habitacion
Proyecto de Casa habitacion Proyecto de Casa habitacion Proyecto de Casa habitacion Proyecto de Casa habitacion
Proyecto de Casa habitacion

Otras fotografías que te pueden interesar:

Proyecto de Casa Habitacion Proyecto de Casa Habitacion Proyecto de Casa Habitacion Proyecto de Casa Habitacion Proyecto casa habitación. Casa habitación Casa habitación
Proyecto de Casa Habitacion Proyecto de Casa Habitacion Proyecto de Casa Habitacion PROYECTOS EN CASA HABITACION Proyecto casa habitación. Casa habitación Casa habitación
Proyecto de Casa Habitacion Proyecto de Casa Habitacion Proyecto de Casa Habitacion Proyecto casa habitación. Proyecto casa habitación Casa habitación Casa habitación

Detalles de la fotografía:

Etiquetas:
arquitectos · construcción · moderno · casa habitación · otras estancias
  • habitissimo
  • fotos
  • foto: proyecto de casa habitacion de proyectos construccion mantenimiento instalaciones #30382
Anunciado en TV Anunciado en TV

Cuéntanos qué necesitas y recibe hasta 4 cotizaciones

Mejora tu hogar
  • Pide cotizaciones
  • Directorio de empresas
  • Precios del sector
  • Preguntas a la comunidad
  • Ideas y proyectos
  • Galería de fotografías
Mejora tu hogar
  • Pide cotizaciones
  • Directorio de empresas
  • Precios del sector
  • Preguntas a la comunidad
  • Ideas y proyectos
  • Galería de fotografías
Particulares
  • Ayuda para particulares
  • Regístrate
  • Consejos para contratar con Habitissimo
Particulares
  • Ayuda para particulares
  • Regístrate
  • Consejos para contratar con Habitissimo
Profesionales
  • Ayuda para profesionales
  • Regístrate
  • Procenter
  • Descarga la app
Profesionales
  • Ayuda para profesionales
  • Regístrate
  • Procenter
  • Descarga la app
Sobre Habitissimo
  • Acerca de
  • Contacta
  • Teléfono Habitissimo
  • Prensa
  • Programa de afiliados
Sobre Habitissimo
  • Acerca de
  • Contacta
  • Teléfono Habitissimo
  • Prensa
  • Programa de afiliados
logo habitissimo habitissimo © 2009 - 2026 Términos de uso Política de privacidad Política de cookies