¿Eres autónomo o empresa? ¡Regístrate gratis! »

habitissimo - Remodelaciones y Servicios para el Hogar
Menú
Accede Crea una cuenta
  • Directorio de profesionales
  • Guía de precios
  • Preguntas a la comunidad
  • Ideas y proyectos
  • Galería de fotos
  • Procenter
  • Ayuda
¿Eres autónomo o empresa?
  • Directorio de profesionales
  • Guía de precios
  • Comunidad
    • Preguntas a la comunidad
    • Ideas y proyectos
    • Galería de fotos
    • Procenter
  • Ayuda
Accede Accede
Accede

Iniciar sesión

Independiente/Empresa

Plano fachadas y cortes

x
Guardar foto Compartir
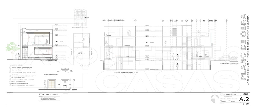
PLANO FACHADAS Y CORTES

Fachadas del proyecto, al ser una privada de nivel medio, solo podemos tener una fachada importante y atractiva.

Cortes del proyecto. Nos permite identificar el juego de losas y alturas del proyecto, así como la solución de terrazas y otros elementos.

Arquitecto Casas

Profesional de Construcción Casa en Álvaro Obregón

Arquitecto casas es una empresa especializada primordialmente en el diseño, construcción y remodelación de espacios… ver más

Detalles del proyecto:

CASA L + C – RESIDENCIA UNIFAMILIAR – 2018

Fotografía 6 de 6

Ver proyecto completo
El presente proyecto se realiza en la zona plateada de la ciudad de pachuca, hidalgo, sobre un terreno de 162 m2 (9… ver proyecto
Etiquetas descriptivas:
construcción casa, construcción, Antes y después
FACHADA VISTA 1 FACHADA VISTA 2 FACHADA VISTA 3 PLANO PLANTAS ARQUITECTÓNICAS
PLANO FACHADAS Y CORTES

Otras fotografías que te pueden interesar:

Fachada Frontal FACHADA PRINCIPAL Fachada Principal Detalle fachada principal FACHADA PRINCIPAL FACHADA PRINCIPAL Pintura en Fachada de Edificio
Fachada Posterior Fachada principal. Fachada Principal Fachada Final FACHADA Fachada Pintura en Fachada de Edificio
Fachada Fachada Prncipal Fachada 1 Fachada Principal Fachada Fachada principal FACHADA PRINCIPAL

Detalles de la fotografía:

Etiquetas:
no hay etiquetas
  • habitissimo
  • fotos
  • foto: plano fachadas y cortes de arquitecto casas #648312
Anunciado en TV Anunciado en TV

Cuéntanos qué necesitas y recibe hasta 4 cotizaciones

Mejora tu hogar
  • Pide cotizaciones
  • Directorio de empresas
  • Precios del sector
  • Preguntas a la comunidad
  • Ideas y proyectos
  • Galería de fotografías
Mejora tu hogar
  • Pide cotizaciones
  • Directorio de empresas
  • Precios del sector
  • Preguntas a la comunidad
  • Ideas y proyectos
  • Galería de fotografías
Particulares
  • Ayuda para particulares
  • Regístrate
  • Consejos para contratar con Habitissimo
Particulares
  • Ayuda para particulares
  • Regístrate
  • Consejos para contratar con Habitissimo
Profesionales
  • Ayuda para profesionales
  • Regístrate
  • Procenter
  • Descarga la app
Profesionales
  • Ayuda para profesionales
  • Regístrate
  • Procenter
  • Descarga la app
Sobre Habitissimo
  • Acerca de
  • Contacta
  • Teléfono Habitissimo
  • Prensa
  • Programa de afiliados
Sobre Habitissimo
  • Acerca de
  • Contacta
  • Teléfono Habitissimo
  • Prensa
  • Programa de afiliados
logo habitissimo habitissimo © 2009 - 2026 Términos de uso Política de privacidad Política de cookies